Maison à rénover Fort potentiel Fixem (57570) 234 m2 habitables

Fixem 57570
Maisons
6 Chambre(s)
1 Salle(s) de bain(s)
234 m²

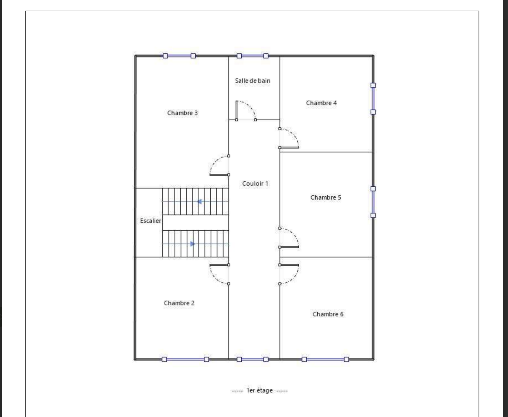
Située dans la commune recherchée de Fixem, à proximité immédiate de la frontière luxembourgeoise, Open Immobilier vous propose cette maison de campagne à rénover, offrant un fort potentiel et de très beaux volumes.Implantée sur une parcelle de 596 m2, cette propriété développe une surface habitable de 234 m2 et se compose comme suit :Au rez-de-chaussée et étages :Une entréeUne cuisine indépendanteUn salon / salle à manger parqueté6 chambres parquetéesUne salle de bainsUn WC séparé Annexes et dépendances :Grand garage pouvant accueillir 3 véhicules, dépendances à l’arrière Plusieurs cavesCombles aménageables d’environ 70 m2, offrant un potentiel supplémentaireCharpente, Tuile, Double vitrage PVC : Trés bon état.Les atouts du bien :✔ Environnement calme et verdoyant✔ Volumes généreux✔ Idéal grande famille ou projet de rénovation ambitieux✔ École maternelle et élémentaire à proximité immédiate (environ 100 m)✔ Nombreuses possibilités d’aménagementCe bien représente une opportunité rare pour les amateurs de rénovation souhaitant créer une maison unique et personnalisée, dans un cadre de vie paisible.Prix de vente : 256 000 € – Honoraires à la charge du vendeur.Les informations sur les risques auxquels ce bien est exposé sont disponibles sur le site :www.georisques.gouv.frRenseignements & visites :Dossier no6995-EC Mandat no6995Erkut CENGIZ Open Immobilier06 63 05 54 02contact@open57.frwww.open57.fr

Détails de la propriété:

ID de propriété: 4570
Type de propriété: Maisons
Statut de propriété: Vente
Chambre(s): 6
Salle(s) de bain(s): 1
Surface habitable: 234 m²
Année de construction: 1974