CATTENOM / SENTZICH – Appartement F4 – Garage

Cattenom 57570
Appartements
2 Chambre(s)
1 Salle(s) de bain(s)
1 Garage(s)
70.5 m²

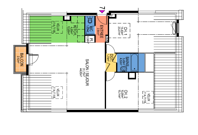
CATTENOM/SENTZICH – L’agence OPEN IMMOBILIER vous propose ce bel appartement de type F4, situé au 2ieme et dernier étage de la résidence. Ce sympathique appartement offre une superficie habitable totale de 70.5 m2  carrez( 100m2 au sol) et se compose principalement comme suit : une entrée avec placard intégré, un spacieux espace de vie composé d’un salon/séjour et d’une cuisine américaine équipée, le tout accédant directement à la terrasse, deux chambres à coucher faisant respectivement 10.17 m2 et 11.05 m2, une salle de bains et un WC séparé. L’appartement dispose en annexe d’un garage fermé. Loyer : 1150 € Charges : 50 € ** TOTAL : 1200 € / mois ** Dépôt de garantie : 1150 € (soit un mois de loyer hors charges) Conformément à la loi ALUR Honoraires Agence : 775.5 € TTC (Visite, constitution du dossier et rédaction du bail : 8€ TTC / M2 soit 564.00 € et Etat des lieux d’entrée : 3€ TTC / M2 soit 211.50 €) Pour plus de renseignements, nous consulter ! Agence Open Immobilier à Hettange-Grande – 03 82 54 73 57 www.open57.f

Détails de la propriété:

ID de propriété: 4585
Type de propriété: Appartements
Statut de propriété: Location
Chambre(s): 2
Salle(s) de bain(s): 1
Garage(s): 1
Surface habitable: 70.5 m²
Année de construction: 2010

Caractéristiques:

  • Terasse
  • Balcon
  • Piscine
  • Parking
  • Jardin
  • Bien meublé